



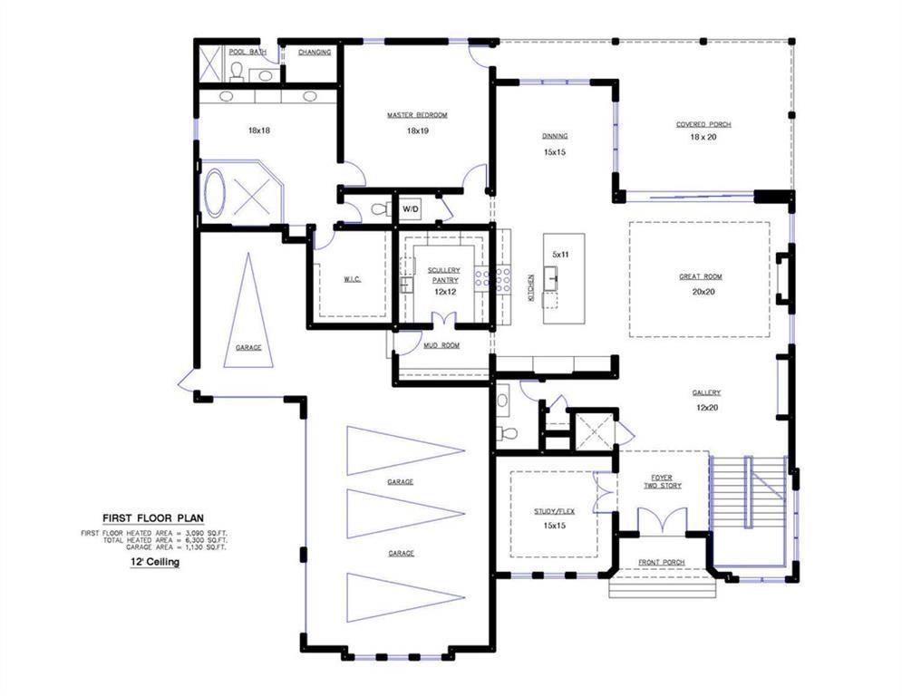
Reintroducing an enhanced and elevated vision for this custom new construction in Indian Hills, offering a rare opportunity to create a spacious luxury residence on the GOLF COURSE overlooking the 9th fairway. With a projected completion of August 2026, this home blends architectural sophistication with modern function on one of the most desirable lots in East Cobb, served by East Side Elementary, Dickerson Middle, and Walton High School. Situated on a level, expansive lot with a seamless main-floor walkout, the property has been reimagined with a collection of high-end features. The main level will showcase 12-FOOT CEILINGS, dramatic 8-FOOT ALUMINUM WINDOWS, and a striking floating staircase framed by a full-height window wall in the entry. Designed for both elegance and comfort, the home includes DOUBLE MASTERS—one on the main level and one upstairs—offering exceptional flexibility for multigenerational living. The proposed plan includes generous living space, over five bedrooms, five or more baths, a four-car garage, and a COVERED ROOFTOP TERRACE with a sweeping GOLF COURSE VIEW. The layout also allows for a main-level pool, thoughtfully planned with an exterior-entry pool bath for effortless indoor-outdoor living. Inside, a chef’s kitchen is complemented by an oversized scullery designed to serve as a full second kitchen- SCULLERY, complete with a sink, dishwasher, refrigerator, and cooktop—ideal for those who love to entertain while maintaining the clean lines of the main kitchen. Spacious gathering areas flow naturally to the backyard as you walk through the large 16 x 18 FT SLIDING POCKET DOORS, and an ELEVATOR is available as an optional upgrade. The expansive daylight terrace level, with its own side entry, is ready for personalization and comes with a finished bedroom, finished full bath and living area, with 10 ft ceilings offering endless flexibility—whether envisioned as a media room, fitness studio, guest retreat, or entertainment suite. With its refined enhancements, elevated design features, and a trusted luxury builder known for meticulous craftsmanship throughout Atlanta, this residence represents a rare opportunity to create a truly custom home on one of Indian Hills Country Club’s most sought-after golf course lots. Interior photos shown are examples from previously completed projects.
| 4 months ago | Price changed to $2,799,000 | |
| 4 months ago | Listing updated with changes from the MLS® | |
| 4 months ago | Listing first seen on site |
Real Estate Broker
Corporate Office
400 Galleria Parkway | Suite 1500 Atlanta GA. 30339